


































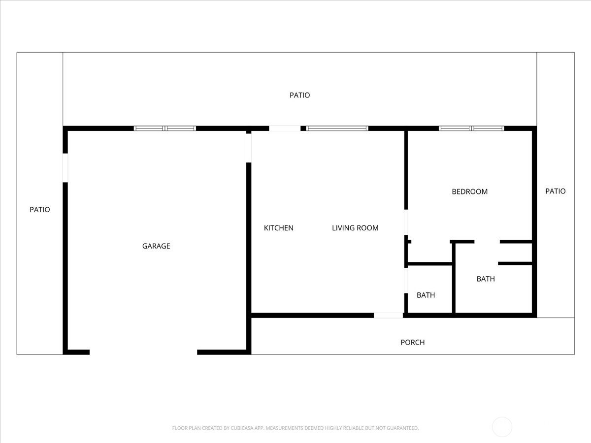
Perched above the Methow River taking advantage of the dramatic views, this newly constructed 1 bed, 1.5 bath home is designed for comfort and ease of living- quant but functional. Set on nearly 10 acres inside the gated Summer Run Estates community, the property offers year-round beauty with recreation minutes away. The efficient 630 sq ft layout yields concrete floors, mini-split heating/cooling, farmhouse sink, butcher block counters, new appliances, oversized windows, metal roof and back porch for BBQ-ing or watching the sunsets turn to clear stary night skies. A spacious 500 sq ft garage includes washer, dryer, and utility sink--ideal for gear storage after a day outdoors. Access to the Methow River-This is an excellent weekend retreat or full-time residence ready for new memories.
This unincorporated community with the namesake of the valley was founded as a mining town in 1889.
Explore neighborhoodOur specialties include luxury homes, relocations, estate sales, and investment properties. With nearly 100 dedicated professionals across six offices in North Central Washington—Chelan, Goldendale, Oroville, Wenatchee, Winthrop, and Yakima—we offer unmatched local expertise and a powerful network to guide clients through every step of the real estate process. Backed by over 40 years of proven success and industry recognition, we deliver service rooted in integrity, excellence, and innovation.
Contact Us